45
$865,000 Sale
Listed 61 days ago
16621 Maki Road
· 4
· 2.0
· 4
· 1918
Key Facts
Key facts for 16621 Maki Road
Property Type
House, House
Parking
Garage: No, 4 parking
MLS #
10356728
Size
1918 sqft
Basement
Full
Listed on
-
Lot size
-
Tax
-
Days on Market
-
Year Built
1960
Maintenance Fee
-
Description
You have got to see this home that offers great value! This amazing home set in the tranquility of Carrs Landing. 4-bed, 2-bath home offers breathtaking views in every direction, including stunning lake scenery. The home has a studio in-law suite with Murphy Bed, that was previously used for short t...erm rentals and was licensed as such. No through road leading to the Maki Coral Beach Trail right trail. The spacious property boasts ample parking for vehicles and recreational toys, an expansive front yard, fully fenced backyard, underground irrigation and a well-constructed storage building for added convenience. Step onto the inviting wrap-around deck and through the front door, where an open-concept living, kitchen and dining area welcomes you. The cozy gas fireplace, set within a stunning stone feature wall, compliments the custom-designed kitchen with quartz countertops and skylights that flood the space with natural light. Spanning over 1,900 sq. ft., this home has been thoughtfully upgraded with a 2019 A/C unit, furnace, and hot water tank, along with a 2016 kitchen renovation, a Type 2 septic system and a durable roof installed in 2008. Enjoy the ultimate Okanagan lifestyle with walking distance access to Gable Beach, Coral Beach and 50th Parallel Winery, plus easy proximity to Predator Ridge, Sparkling Hill Resort, Kelowna International Airport and all the amenities of Lake Country and Vernon. Don’t miss out—schedule your private viewing today! (id:10452)
Similar Properties (No results)
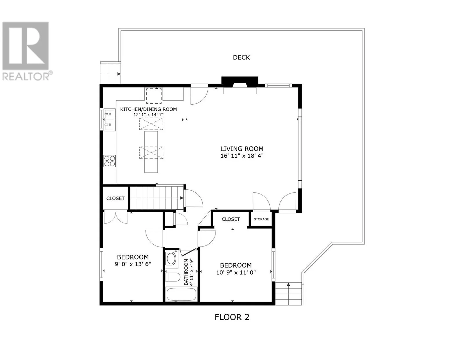
Room Types
4pc Bathroom
-
Dimensions 13' x 5'
65 sqft
4pc Bathroom
-
Dimensions 7' x 7'
49 sqft
Bedroom
-
Dimensions 11'2'' x 10'7''
118.18 sqft
Listing courtesy of: Century 21 Assurance Realty Ltd
This REALTOR.ca listing content is owned and licensed by REALTOR® members of The Canadian Real Estate Association.